ANEXO II – COMPONENTES DOS PADRÕES DE LIGAÇÕES DE ÁGUA
PADRÃO DE LIGAÇÃO COMPONENTES DO PADRÃO DE LIGAÇÃO DEÁGUA (PLA)
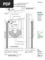
HIDRÔMETRO PPH - PADRÃO PROTETOR HIDRÔMETRO PKC - PADRÃO KIT CAVALETE
NÚMERO NOME DIMENSÕES MATERIAL
CAPACIDADE MONTAGEM NÚMERO TIPO NÚMERO TIPO MATERIAL
(mm) CORPO TAMPA
PPH 001 FV FV
PLA 002 PLA dn ¾” (3 e 5) m3/h Muro PPH 001C Caixa 460 x 380 x 125 PP PP PKC002 Kit Cavalete PP
PPH 001D PP PC-T
PLA 003 Recuo - - - - - PKC003 Kit Cavalete PP
3
PLA 004 PLA dn ¾” (3 e 5) m /h Recuo - - - - - PKC004 Kit Cavalete PP
PLA 005 1º Vão - - - - - PKC005 Kit Cavalete PP
PLA 006 Recuo - - - - - PKC006 Kit Cavalete PVC - R
PLA dn 1" (7 e 10) m3/h
PLA 007 Muro PPH 001A Caixa 552 x 375 x 125 FV FV PKC007 Kit Cavalete PVC - R
PLA 008 Recuo - - - - - PKC008 Kit Cavalete PVC - R
PLA dn 1 ½” 20 m3/h
PLA 009 Muro PPH 001B Caixa 600 x 375 x 185 FV FV PKC009 Kit Cavalete PVC - R
3
PLA 010 PLA dn 1 ½” 30 m /h Recuo - - - - - PKC010 Kit Cavalete PVC - R
PLA 011 PLA dn 2" 20 m3/h Recuo - - - - PKC011 Kit Cavalete PVC - R
PLA 012 PLA dn 2" 30m3/h ou 300 m3/dia Recuo - - - - - PKC012 Kit Cavalete PVC - R
Legenda:
PLA: Padrão de Ligação Predial de Água; dn: Diâmetro Nominal; PPH: Padrão Protetor de Hidrômetro; PKC: Padrão Kit Cavalete; FV:
Fibra de Vidro; PP: Polipropileno; PC - T: Policarbonato Transparente; PVC-R: Cloreto de Polivinila - Rígido