0% found this document useful (0 votes)
59 views1 page

Heavy Duty Cast Iron Floor Cleanout

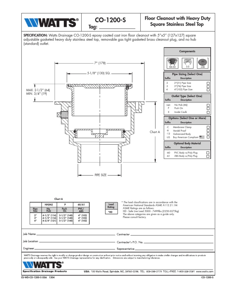
This document provides specifications for a Watts Drainage CO-1200-S floor cleanout. It includes: - Dimensions of 7" diameter with a 5"x5" square adjustable stainless steel top and removable brass plug. - Options for 2", 3", or 4" pipe sizing and outlet types of no hub, push on, or inside caulk. - Additional options include a membrane clamp, vandal proof cover, and galvanized or PVC/ABS bodies. - It has a heavy duty load rating of 5000-7499 lbs.

Uploaded by

Watts
Copyright
© Attribution Non-Commercial (BY-NC)
We take content rights seriously. If you suspect this is your content, claim it here.
Available Formats
Download as PDF, TXT or read online on Scribd
0% found this document useful (0 votes)
59 views1 page

Heavy Duty Cast Iron Floor Cleanout

This document provides specifications for a Watts Drainage CO-1200-S floor cleanout. It includes: - Dimensions of 7" diameter with a 5"x5" square adjustable stainless steel top and removable brass plug. - Options for 2", 3", or 4" pipe sizing and outlet types of no hub, push on, or inside caulk. - Additional options include a membrane clamp, vandal proof cover, and galvanized or PVC/ABS bodies. - It has a heavy duty load rating of 5000-7499 lbs.

Uploaded by

Watts
Copyright
© Attribution Non-Commercial (BY-NC)
We take content rights seriously. If you suspect this is your content, claim it here.
Available Formats
Download as PDF, TXT or read online on Scribd
You are on page 1/ 1

Tag:

CO-1200-S

Floor Cleanout with Heavy Duty Square Stainless Steel Top

SPECIFICATION: Watts Drainage CO-1200-S epoxy coated cast iron oor cleanout with 5x5 (127x127) square adjustable gasketed heavy duty stainless steel top, removable gas tight gasketed brass cleanout plug, and no hub (standard) outlet.
Components

7" (178)
B4-34

S-3

34B

5-1/8" (130) SQ.


Sufx 2 3 4

Pipe Sizing (Select One)


Description 2"(51) Pipe Size 3"(76) Pipe Size 4"(102) Pipe Size

MAX. 2-1/2" (64) MIN. 3/4" (19)

Outlet Type (Select One)


Sufx NH P X Description No Hub (MJ) Push On Inside Caulk

Options (Select One or More)


Sufx -C -6 -13 -US Description Membrane Clamp Vandel Proof Galvanized Body Buy American Compliant

Chart A

Optional Body Material


Sufx -60 -61 Description PVC Body w/Poly Plug ABS Body w/Poly Plug

PIPE SIZE

Chart A NH(MJ) Pipe Size


2" 3" 4"

P Push On
5-1/2" (140) 5-1/2" (140) 5-1/2" (140)

60/61 PVC/ ABS


4" (102) 4" (102) 4" (102)

No Hub
4-1/2" (114) 4-1/2" (114) 4-3/4" (121)

Load Rating *HD

* The load classications are in accordance with the American National Standards ASME A112.21.1M ASME Ratings are as follows: HD - Safe Live Load 5000 - 7499lbs.(2250-3375kg) The above categories are given as a guide only. Please consult factory.

ES-WD-CO-1200-S USA 1304

CO-1200-S

You might also like