100% found this document useful (5 votes)
2K views3 pages

ACS800 Boards

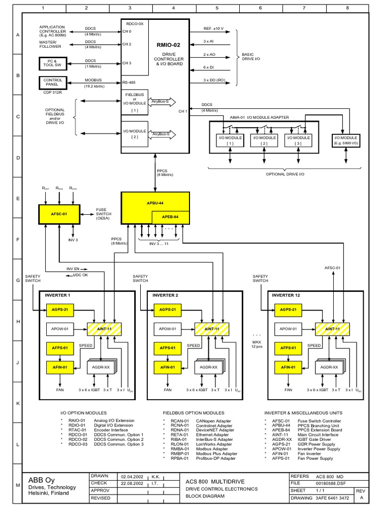
This document shows a diagram of a control system architecture. It includes various components like a controller, drives, I/O modules, and safety components connected through different communication channels. The diagram labels and connects different parts of the control system to show the overall setup and configuration.

Uploaded by

Puneet Joshi
Copyright
© © All Rights Reserved
We take content rights seriously. If you suspect this is your content, claim it here.
Available Formats
Download as PDF, TXT or read online on Scribd
100% found this document useful (5 votes)
2K views3 pages

ACS800 Boards

This document shows a diagram of a control system architecture. It includes various components like a controller, drives, I/O modules, and safety components connected through different communication channels. The diagram labels and connects different parts of the control system to show the overall setup and configuration.

Uploaded by

Puneet Joshi
Copyright
© © All Rights Reserved
We take content rights seriously. If you suspect this is your content, claim it here.
Available Formats
Download as PDF, TXT or read online on Scribd
You are on page 1/ 3

1 2 3 4 5 6 7 8

R D C O -0 X
A P P L IC A T IO N D D C S R E F . ± 1 0 V
C O N T R O L L E R C H 0
A (E .g . A C 8 0 0 M ) ( 4 M b it/s )

M A S T E R / D D C S 3 x A I
F O L L O W E R ( 4 M b it/s )
C H 2 R M IO -0 2
D R IV E 2 x A O B A S IC
C O N T R O L L E R D R IV E I/O
P C & D D C S
C H 3 & I/O B O A R D
T O O L S W ( 1 M b it/s ) 6 x D I

B
C O N T R O L M O D B U S 3 x D O (R O )
R S -4 8 5
P A N E L ( 1 9 .2 k b it/s )
C D P 3 1 2 R
F IE L D B U S
o r
I/O M O D U L E A n y B u s -S
D D C S
O P T IO N A L [ 1 ] C H 1 ( 4 M b it/s )
F IE L D B U S
C a n d /o r A IM A -0 1 I/O M O D U L E A D A P T E R
D R IV E I/O

I/O M O D U L E
A n y B u s -S
[ 2 ] I/O M O D U L E I/O M O D U L E I/O M O D U L E I/O M O D U L E
[ 1 ] [ 2 ] [ 3 ] (E .g . S 8 0 0 I/O )

P P C S
( 8 M b it/s ) O P T IO N A L D R IV E I/O

R C H 1 R C H 2 R C H 3

E
A P B U -4 4
F U S E
A F S C -0 1 S W IT C H
(O E S A ) A P E B -8 4

. . .

F IN V 3 P P C S
( 8 M b it/s ) IN V 3 ... 1 1

IN V E N A F S C -0 1

S A F E T Y U D C O K S A F E T Y S A F E T Y
G S W IT C H S W IT C H S W IT C H

IN V E R T E R 1 IN V E R T E R 2 IN V E R T E R 1 2

A G P S -2 1 A G P S -2 1 A G P S -2 1

H
A P O W -0 1 A IN T -1 1 A P O W -0 1 A IN T -1 1 A P O W -0 1 A IN T -1 1
. . .
M A X
S P E E D S P E E D 1 2 p c s S P E E D
A F P S -0 1 A F P S -0 1 A F P S -0 1

J
A F IN -0 1 A G D R -X X A F IN -0 1 A G D R -X X A F IN -0 1 A G D R -X X

F A N 3 x 6 x IG B T 3 x T 3 x I U D C F A N 3 x 6 x IG B T 3 x T 3 x I U D C F A N 3 x 6 x IG B T 3 x T 3 x I U D C

I/O O P T IO N M O D U L E S F IE L D B U S O P T IO N M O D U L E S IN V E R T E R & M IS C E L L A N E O U S U N IT S
* R A IO -0 1 A n a lo g I/ O E x t e n s io n * R C A N -0 1 C A N o p e n A d a p te r * A F S C -0 1 F u s e S w it c h C o n tr o lle r
* R D IO -0 1 D ig it a l I/ O E x te n s io n * R C N A -0 1 C o n tr o ln e t A d a p t e r * A P B U -4 4 P P C S B ra n c h in g U n it
* R T A C -0 1 E n c o d e r In te rfa c e * R D N A -0 1 D e v ic e N E T A d a p t e r * A P E B -8 4 P P C S E x te n s io n B o a r d
* R D C O -0 1 D D C S C o m m u n . O p tio n 1 * R E T A -0 1 E th e rn e t A d a p te r * A IN T - 1 1 M a in C ir c u it In te rfa c e
* R D C O -0 2 D D C S C o m m u n . O p tio n 2 * R IB A -0 1 In te rB u s -S A d a p te r * A G D R -X X IG B T G a te D r iv e r
L * R D C O -0 3 D D C S C o m m u n . O p tio n 3 * R L O N -0 1 L o n W o rk s A d a p te r * A G P S -2 1 G D R P o w e r S u p p ly
* R M B A -0 1 M o d b u s A d a p te r * A P O W -0 1 In v e rte r P o w e r S u p p ly
* R M B P -0 1 M o d b u s P lu s A d a p t e r * A F IN - 0 1 F a n In v e rte r
* R P B A -0 1 P r o f ib u s - D P A d a p te r * A F P S -0 1 F a n P o w e r S u p p ly

D R A W N 0 2 .0 4 .2 0 0 2 K .K . R E F E R S A C S 8 0 0 M D
A B B O y C H E C K 2 2 .0 8 .2 0 0 2 I.T . A C S 8 0 0 M U L T ID R IV E F IL E 0 0 1 8 0 5 8 8 .D S F
M D r iv e s , T e c h n o lo g y
A P P R O V D R IV E C O N T R O L E L E C T R O N IC S S H E E T 1 / 1 R E V
H e ls in k i, F in la n d
R E V IS E D B L O C K D IA G R A M D R A W IN G 3 A F E 6 4 6 1 3 4 7 2 A
ACS 800 R8i right-side open

ACS600 - 25, rev. 1 Copyright © ABB Industry Oy


ACS 800 R8i left-side open

ACS600 - 26, rev. 1 Copyright © ABB Industry Oy

You might also like